Cara uji penetrasi lapangan dengan SPT
Dalam desain struktur tanah fondasi sering dilakukan analisis stabilitas dan perhitungan desain fondasi suatu bangunan dengan menggunakan parameter tanah baik tegangan total maupun tegangan efektif dan identifikasi tanah. Memperoleh parameter perlawanan penetrasi lapisan tanah dilapangan dengan SPT, yang dapat dipergunakan untuk identifikasi perlapisan tanah yang merupakan bagian dari desain pondasi.
1. Ketentuan dan persyaratan
1.1. Peralatan
Peraltan yang diperlukan dalam uji penetrasi dengan SPT adalah sebagai berikut :
a) Mesin bor lengkap dengan peralatannya
b) Mesin pompa lengkap dengan peralatannya
c) Split barrel sampler / split spoon sampler
d) Palu dengan berat 63.5 kg (140 lbs) dengan toleransi ±1%
e) Tripod
f) Rol meter
g) Alat penyipat datar
h) Kerekan
i) Kunci-kunci pipa
j) Tali untuk penarik palu
k) Perlengkapan lainnya
|
| Contoh split barrel sampler SPT |
|
| Ukuran Split barrel sampler ASTM |
1.2. Bahan dan perlengkapan Pengujian SPT
2. Pengujian
2.1. Pengujian Penetrasi dengan SPT
2.2. Kalibrasi alat
2.3. Petugas dalam pengujian SPT
3. Cara Pengujian SPT
3.1. Persiapan pengujian
- Pemasangan blok penahan / knocking block pada pipa bor
- Beri tanda ketinggian 0.76 m pada pipa luncuran palu untuk ketinggian jatuh
- Bersihkan lubang bor dari sisa pengeboran
- Pasang split barrel sampler pada pipa bor dan diujung disambung dengan pipa bor yang telah dipasang blok penahan
- Masukkan peralatan uji SPT hingga ke dasar lubang bor / sampai kedalaman pengujian yang diinginkan
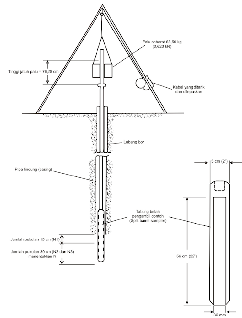
- Pada batang bor mulai dari muka tanah sampai ketinggian 15 cm, 30 cm dan 45 cm diberi tanda.
|
| Gambaran penetrasi dengan SPT |
3.2. Prosedur Pengujian SPT
15 cm pertama dicatat N1,15 cm ke dua dicatat N2,15 cm ke tiga dicatat N3,
Jumlah pukulan yan gdihitung adalah N2 + N3. Nilai N1 tidak diperhitungkan karena masih kotor bekas pengeboran.
Menurut teori terzhaghi dan peck Hubungan nilai N dengan kerapatan relatif adalah sebagai berikut:
|
| Hubungan nilai N dengan kerapatan relatif |
h) Bila nilai N > 50 pukulan, hentikan pengujian dan tambah pengujian sampai minimum 6 meter
|
| Prosedur pengujian SPT Geoteknik |
Dapat disimpulkan bahwa cara pengujian SPT atau cara pengujian bor teknik ini bertujuan untuk mengetahui baik perlawanan dinamik tanah maupun pengambilan contoh tanah dengan teknik penumbukan. Selain uji bor teknik dengan SPT pengujian lainnya seperti uji sondir atau CPT terdapat pengujian lainnya yang bermanfaat dalam melakukan soil investigation dalam bidang konstruksi guna mengetahui parameter tanah. Uji SPT ini merupakan percobaan dinamis yang dilakukan dalam suatu lubang bor dengan memasukkan tabung sampel yang berdiameter dalam 35 mm sedalam 300 mm dengan menggunakan masa pendorong palu atau hammer seberat 140 lbs atau 63,5 kg yang jatuh bebas dari ketinggian 760 mm. Banyaknya pukulan palu tersebut untuk memasukkan tabung sampel sedalam 300 dinyatakan sebagai nilai N.
rujukan :
Jasa Survey Tanah Soil Investigation





Posting Komentar untuk "Cara uji penetrasi lapangan dengan SPT"
Posting Komentar